Hope Street House

HopeSt_20210511_9993_lores.jpg

Built on the land of the Whadjuk people of the Noongar nation.

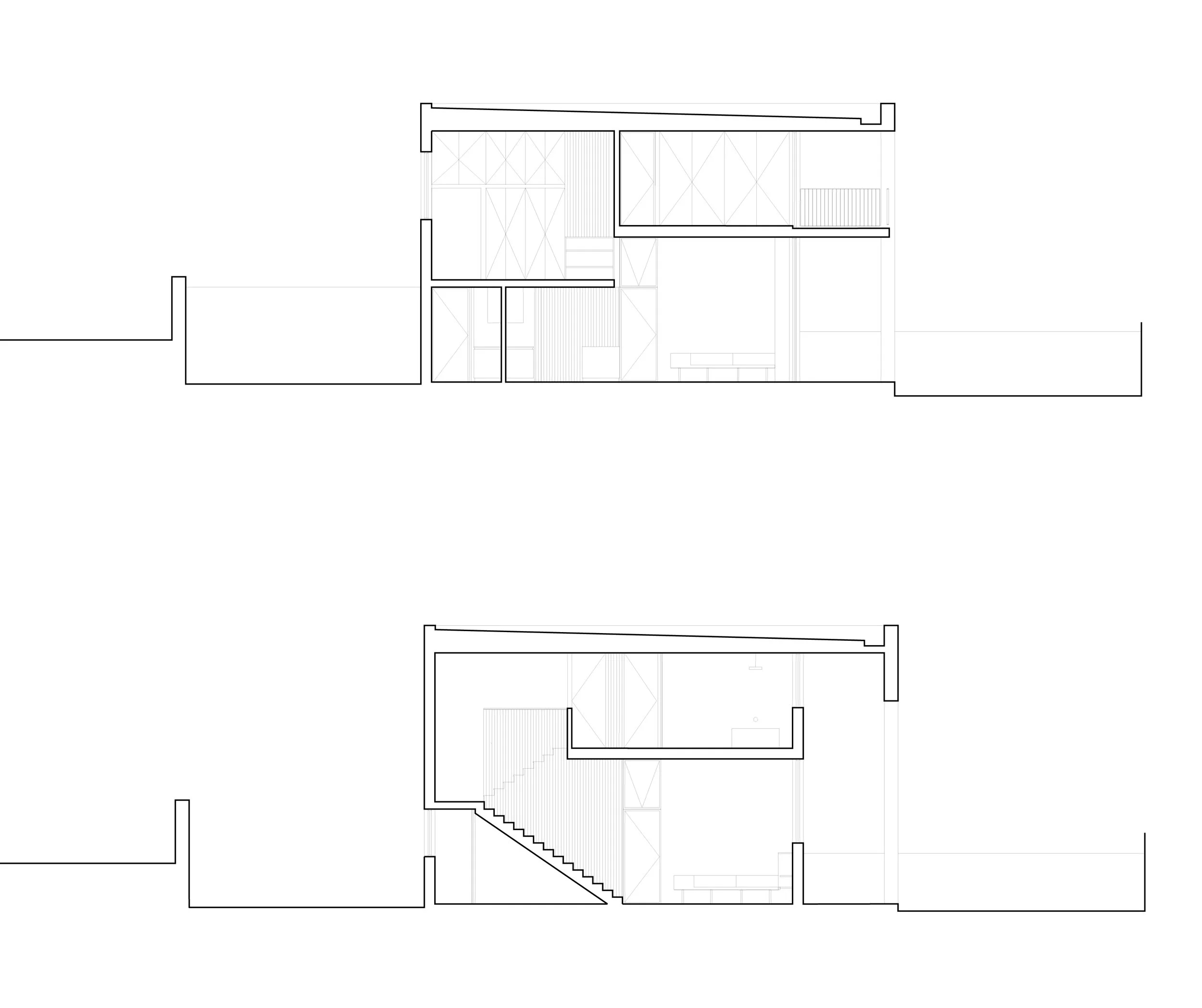
Sunshine and shade, high and low, built and unbuilt, gappy and closed.

HopeSt_20210511_0111_lores.jpg
 

An infill dwelling on a battleaxe lot, the Hope Street house explores spatial variety within compact family living

HopeSt_20210511_0021_lores.jpeg
 

The section modulates tall spaces for living and playing with low spaces for sleeping and cooking

HopeSt_20210511_0059_lores.jpeg
 

External masonry structure, flush and sheer on south and east, is eroded by the sun on the north side, and extends at upper level to the west to provide a deep covered area. Internal structure is entirely timber framed; a hard shell and soft body

HopeSt_20210511_9974_lores.jpeg

The bathroom is conceived as place to remind us of of getting cool in concrete tanks and troughs, the datum of the ocean, and the elemental pragmatics of washing

Hope Street House-01.jpg
 
HopeSt_20210511_9979_lores.jpeg

Project info

Project Name: Hope Street House
Project Type: Housing, Urban
Client: Private
Location: Walyalup (White Gum Valley), Western Australia
Area: 150m2
Completion year: 2017
Photography: Robert Frith, Acorn

Team

Builder: Michael Bradshaw Building


 

Select projects

Previous
Previous

Rule Street House Additions

Next
Next

Torrens Street House